Familien aufgepasst! Reihenhaus in Markranstädt sucht ab Januar 2026 neue Mieter

04420 Markranstädt, Reihenhaus zur Miete

Kontaktdaten

Objektdaten

  • Objekt ID
    2521
  • Objekttypen
    Haus, Reihenhaus
  • Adresse
    04420 Markranstädt
  • Wohnfläche ca.
    110 m²
  • Grund­stück ca.
    100 m²
  • Zimmer
    4
  • Badezimmer
    1
  • Balkone
    1
  • Heizungsart
    Zentralheizung
  • Wesentlicher Energieträger
    Gas
  • Stellplatz
    1
  • Garage
    1 Stellplatz
  • Verfügbar ab
    01.01.2026
  • Kaution
    3.000,00 EUR
  • Kaltmiete
    1.000,00 EUR
  • Nebenkosten
    100,00 EUR

Ausstattung / Merkmale

  • ✓ Außenstellplatz
  • ✓ Balkon
  • ✓ Garage
  • ✓ Garten/Gartennutzung
  • ✓ Gäste-WC

Objekt­beschreibung

Kurzbeschreibung

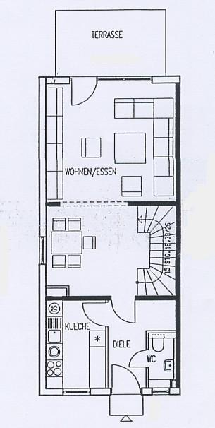
Das Reihenhaus befindet sich im Elsterweg in Markranstädt und hat eine Wohnfläche von ca. 110 m² auf 3 Etagen. Es bietet, Wohn-, Schlaf- und Kinderzimmer, Bad mit Wanne + Dusche + Fenster, Gäste-WC, separate Küche, Studio, Garten, Garage und mehr.

Beschreibung

Die Doppelhaushälfte befindet sich im Elsterweg und ist ab Januar 2026 neu zu vermieten. Auf drei Etagen und ca. 110 m² bietet das Haus genügend Platz für eine vierköpfige Familie. Im Erdgeschoss werden Sie von einer großzügigen Diele empfangen. Linkerhand befindet sich die separate Küche, geradezu das Wohn- und Esszimmer mit Zugang zur Terrasse und zum Garten. Rechterhand erreichen Sie das Gäste-WC. Von der Diele aus gelangen Sie über eine Treppe in das 1. Obergeschoss, wo sich das Schlafzimmer, zwei Kinderzimmer und das Bad mit Wanne + Dusche + Fenster befindet. Im Dachgeschoss finden Sie ein ausgebautes Studio, welches sich ideal als Hobbyraum nutzen lässt. Zum Haus gehört ein Garten und eine Garage.
ACHTUNG: Für die Versorgung mit Heizung und Warmwasser, sowie für die Entsorgung von Müll sind Selbstversorgerverträge abzuschließen - diese Kosten sind nicht in den Nebenkosten enthalten!!!

Ausstattung

* Doppelhaushälfte * Wohnzimmer * Schlafzimmer * zwei Kinderzimmer * Dachstudio * Bad mit Wanne + Dusche + Fenster * Gäste-WC * Laminat-, Teppich- und Fliesenböden * separate Küche * Garten * Garage * ACHTUNG: Für die Versorgung mit Heizung und Warmwasser, sowie für die Entsorgung von Müll sind Selbstversorgerverträge abzuschließen - diese Kosten sind nicht in den Nebenkosten enthalten!!! *

Sonstiges

Alle Angaben und Darstellungen beruhen auf Informationen unserer Auftraggeber. Eine Haftung für die Richtigkeit und Vollständigkeit der Informationen kann von KOWO Immobilienservice GmbH deswegen nicht übernommen werden. Grundrisse sind nur schematisch und nicht maßstabsgerecht. Die Möblierung ist, wenn nicht anders angegeben, kein Bestandteil des Angebotes und dient nur als Einrichtungsbeispiel. Es gelten unsere AGB, die Sie unter www.kowo-immobilienservice.de oder in unseren Geschäftsräumen einsehen können. Sollte das vorgestellte Angebot nicht Ihren Anforderungen entsprechen, schauen Sie doch auf unserer Internetseite vorbei oder rufen uns an. Bei der KOWO Immobilienservice GmbH sind Sie in den besten Händen!

Lage

Verlässt man das Stadtgebiet Leipzig in Richtung Südwesten, so gelangt man nach Markranstädt. Die Stadt am See hat etwas mehr als 15.000 Einwohner, die sich neben dem eigentlichen Stadtgebiet noch auf 18 angegliederte Dörfer verteilen.
Das Geschäftsleben der Kleinstadt läuft jedoch in ihrem Zentrum zusammen: Hier befinden sich die St. Laurentius Kirche, das Rathaus und der Marktplatz. Supermärkte und Drogerien, Obst- und Gemüseläden, Bäckereien und Fleischereien sowie zahlreiche weitere Geschäfte laden in der Leipziger Straße und den Markt Arkaden zum Einkaufen ein.
Markranstädt wird auch die 'Sportstadt am See' genannt. Zahlreiche Sportvereine sowie ein Fitnessstudio bieten Sportarten von Handball über Badminton bis hin zum Kanu fahren an. Das Naherholungsgebiet Kulkwitzer See lädt zudem an seinen Strand- und Wasserflächen zur aktiven Freizeitgestaltung ein.
Mobil sind die Markranstädter durch diverse Buslinien. Außerdem verfügt die Stadt über eine Bahnstation sowie die unmittelbare Anbindung an die A9, die A38 sowie mehrere Bundesstraßen.
In Markranstädt wohnt man kleinstädtisch und gemütlich. Und doch nah genug dran an Leipzig, mächte man seinen Samstagabend einmal großstädtisch verbringen.

Die ungefähre Position der Immobilie auf Google Maps ansehen (Link auf externe Website)

Direktanfrage

* Pflichtangaben
 SSL-verschlüsselt
ImpressumDatenschutz | KontaktDownloads
© 2025 KOWO Immobilienservice GmbH